Lắp đặt bồn cầu 1 khối Viglacera có khó không và cách lắp thế nào là câu hỏi có rất nhiều khách hàng thắc mắc. Vậy cách lắp đặt loại bồn cầu như thế nào và có điểm gì cần lưu ý khi lắp bồn cầu, bài viết dưới đây sẽ giải đáp chi tiết những thắc mắc của các bạn.
Những điều cần làm trước khi lắp đặt bồn cầu 1 khối Viglacera
Khi nhắc tới những sản phẩm bồn cầu được nhiều người ưa chuộng tin dùng thì không thể không nhắc tới bồn cầu 1 khối Viglacera. Tuy nhiên, để đảm bảo độ an toàn và tiện nghi cho người dùng, việc lắp đặt bồn cầu 1 khối đòi hỏi sự chuẩn bị kỹ lưỡng trước khi thực hiện. Dưới đây là những điều cần làm trước khi lắp đặt bồn cầu 1 khối Viglacera.
Chuẩn bị các dụng cụ trước khi lắp đặt bồn cầu Viglacera
Trước khi bắt đầu lắp đặt bồn cầu 1 khối Viglacera, bạn cần chuẩn bị đầy đủ các dụng cụ lắp đặt như:
- Bộ đồ nghề: Ốc vít, bu lông, tua vít, đệm chịu lực, kìm, mỏ lết,...
- Bộ ống nối và ống xả
- Dụng cụ cắt ống nước và ống xả
- Dụng cụ điều chỉnh độ cân bằng và thước đo độ cao của bồn cầu
- Băng keo chống rò nước
- Bột xi măng hoặc silicon để lấp đầy khoảng trống giữa sàn nhà và bồn cầu (nếu cần)
- Độ cao của bồn cầu: Bàn cầu nên được đặt ở độ cao phù hợp để người sử dụng thoải mái khi sử dụng. Thông thường, độ cao của bồn cầu nên là khoảng 40-45 cm tính từ sàn nhà.
- Đồng hồ đo áp suất nước, ống nối, van xả, măng sông, băng keo, bộ tua vít và các dụng cụ khác. Đảm bảo rằng các dụng cụ này đều được chuẩn bị sẵn sàng và đủ để thực hiện quá trình lắp đặt.
Chuẩn bị mặt bằng
Trước khi thực hiện cách lắp bồn cầu liền khối viglacera, bạn cần phải chuẩn bị mặt bằng để đặt bồn cầu và lưu ý những vấn đề sau:
- Mặt bằng cần phải được làm phẳng và đảm bảo độ bền vững để tránh trường hợp bồn cầu bị lệch hoặc không đứng vững khi sử dụng.
- Cần đảm bảo rằng mặt bằng đã được làm sạch và khô ráo để tránh bị trượt khi lắp đặt.
- Để đảm bảo không gian sử dụng thoải mái và dễ dàng vệ sinh, nên đặt bồn cầu cách xa tường và các vật dụng khác ít nhất 15-20cm.
- Vị trí lắp đặt cần đảm bảo khả năng xả nước tốt để đẩy hết mọi chất thải ra khỏi ống xả một cách hiệu quả.
- Bồn cầu nên được đặt ở vị trí dễ dàng sử dụng và tiện lợi để đáp ứng sự tiện nghi và thuận tiện cho người sử dụng,
Ngoài ra, trước khi bắt đầu lắp đặt, bạn cần đọc kỹ hướng dẫn lắp đặt của nhà sản xuất và tuân thủ đúng quy trình lắp đặt. Nếu bạn không tự tin trong việc lắp đặt, hãy liên hệ với các chuyên gia hoặc nhà cung cấp để được tư vấn và hỗ trợ.

Trước khi lắp đặt bồn cầu 1 khối Viglacera cần chuẩn bị mặt bằng và dụng cụ
Hướng dẫn cách lắp đặt bồn cầu 1 khối Viglacera chi tiết
Bồn cầu 1 khối Viglacera là một trong những sản phẩm vệ sinh được sử dụng phổ biến trong các gia đình cũng như các công trình công cộng. Việc lắp đặt bồn cầu đòi hỏi sự chuẩn bị kỹ lưỡng và cẩn thận. Dưới đây là hướng dẫn lắp đặt bồn cầu 1 khối Viglacera chi tiết.
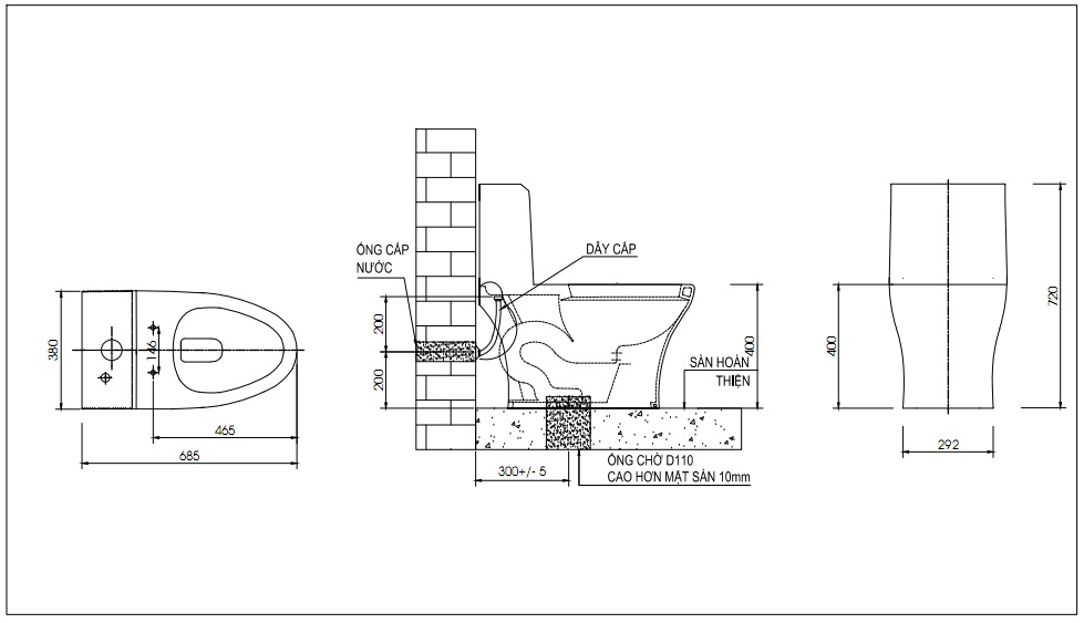
Bước 1: Kiểm tra kích thước cần thiết để lắp bồn cầu Viglacera
Trước khi bắt đầu lắp đặt bồn cầu, bạn cần kiểm tra kích thước lắp đặt cần thiết để đảm bảo rằng bồn cầu có thể được lắp đặt một cách chính xác. Kích thước lắp đặt cần thiết bao gồm độ cao của thân bệt, khoảng cách giữa các ống nối và kích thước của lỗ thoát. Nếu bạn không chắc chắn về kích thước cần thiết, hãy tham khảo hướng dẫn lắp đặt của nhà sản xuất hoặc tìm kiếm sự tư vấn từ các chuyên gia.
Bước 2: Cố định thân bệt
Sau khi xác định kích thước lắp đặt, bạn cần cố định thân bệt vào vị trí. Đảm bảo rằng thân bệt được đặt trên mặt bằng phẳng và bằng cách sử dụng các giá đỡ để định vị và giữ cho thân bệt đứng thẳng. Sau đó, sử dụng bộ tua vít để gắn chặt thân bệt vào mặt bằng.
Để cố định thân bệt với sàn, bạn cần đặt ốc vít cùng bu lông qua các lỗ trên bồn cầu và đường ống nước, và sau đó siết chặt chúng bằng tua vít hoặc kìm. Để tránh gây ra sự chênh lệch trong quá trình lắp đặt, bạn cần đặt các ốc vít và bu lông một cách đồng đều. Nếu sử dụng đệm chịu lực, bạn cần đặt bồn cầu Viglacera một cách chính xác và khít với đệm để tránh bị lệch khi siết ốc vít và bu lông.
Bước 3: Lắp đặt đường cấp nước
Tiếp theo, bạn cần lắp đặt đường cấp nước để kết nối bồn cầu với ống nước. Sử dụng ống nối và măng sông để kết nối đường cấp nước với bồn cầu. Nếu cần thiết, bạn có thể sử dụng băng keo để bảo vệ măng sông và đảm bảo rằng nước không bị rò rỉ.
Để nối ống xả với bồn cầu, bạn cần lắp ống nối vào lỗ xả nằm ở dưới bồn cầu và sử dụng ốc vít để kẹp chặt ống nối với bồn cầu. Sau đó, bạn cần nối ống xả với ống xả chính bằng cách sử dụng một ống nối giữa hai ống.
Bạn cần chú ý đến độ nghiêng của ống xả để đảm bảo nước và chất thải sẽ được đẩy hết ra khỏi ống xả một cách hiệu quả. Khi kết nối đường nước và ống xả, bạn cần chú ý đến độ nghiêng của ống nối để tránh rò rỉ nước hoặc không đủ nước khi sử dụng bồn cầu.
Bước 4: Kiểm tra sau khi lắp đặt
Sau khi hoàn tất quá trình lắp đặt, hãy kiểm tra kỹ nước chảy ra để đảm bảo rằng bồn cầu hoạt động đúng cách và không có bất kỳ vấn đề gì xảy ra. Nếu phát hiện ra bất kỳ vấn đề gì, hãy liên hệ với nhà cung cấp hoặc các chuyên gia để được hỗ trợ và khắc phục sự cố.

Thực hiện lắp đặt theo đúng quy trình nhất định
Một số điều cần lưu ý sau khi lắp đặt bồn cầu 1 khối Viglacera
Việc lắp đặt bồn cầu Viglacera đúng cách là rất quan trọng để đảm bảo tuổi thọ của sản phẩm và tránh các vấn đề gây nghẹt bồn cầu. Tuy nhiên, để duy trì sự tiện nghi và hiệu quả của bồn cầu vệ sinh thì bạn cũng cần phải chú ý đến việc vệ sinh và sử dụng đúng cách.
- Để tránh gây nghẹt bồn cầu, bạn nên tránh vứt rác hoặc chất thải khó phân hủy vào trong bồn cầu.
- Ngoài ra, không nên ngồi hai chân lên thành bồn cầu để tránh gây hư hỏng hoặc vỡ bồn cầu.
- Khi sử dụng, bạn nên kiểm tra xem chất thải đã được xả hết hay chưa trước khi rời khỏi nhà vệ sinh.
- Nếu có thời gian rảnh, nên thường xuyên kiểm tra và vệ sinh sạch sẽ bồn cầu để đảm bảo sự an toàn và vệ sinh tốt cho người sử dụng.
- Trong quá trình sử dụng bồn cầu, bạn cũng nên vệ sinh sạch sẽ để đẩy lùi sự phát triển của các vi khuẩn và bảo vệ sức khỏe của gia đình.
Với những cách lắp đặt bồn cầu đơn giản mà chúng tôi đã hướng dẫn, hy vọng bạn có thể sử dụng bồn cầu một cách hiệu quả và đúng cách, từ đó giúp tăng tuổi thọ của sản phẩm và đảm bảo sức khỏe cho người sử dụng.
Nếu bạn đang cần tìm một địa chỉ uy tín và chất lượng để mua bồn cầu 1 khối Viglacera hoặc bất kỳ sản phẩm vệ sinh nào khác, hãy đến với Thiết Bị Vệ Sinh Giá Kho. Công ty cung cấp các sản phẩm vệ sinh chất lượng cao với giá cả hợp lý và đội ngũ nhân viên tư vấn chuyên nghiệp sẵn sàng hỗ trợ bạn trong mọi vấn đề liên quan đến sản phẩm. Để biết thêm thông tin chi tiết, hãy truy cập website https://thietbivesinhgiakho.net hoặc liên hệ hotline 0852 333 393 để được tư vấn và hỗ trợ.